Projekt

Ortsmitte Jugenheim, Seeheim-Jugenheim

Bauherr: Gemeinde Seeheim-Jugenheim

Planungszeit: 2000 - 2003

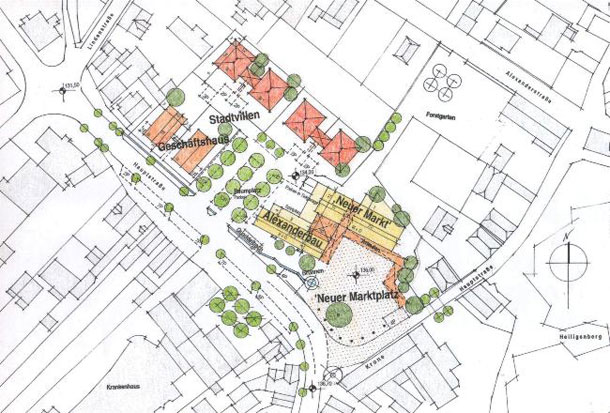
Im Rahmen eines offenen Investorenwettbewerbs entstand ein Konsenskonzept für einen neuen Mittelpunkt der Gemeinde.
Ziel war es eine neue Ortsmitte mit einem entsprechend bedeutenden Platz zu schaffen. Die zurückhaltende und moderate Bebauungstruktur besteht aus einem «Neuen Markt» mit Einbeziehung zweier zusätzlicher Wohn- und Geschäftshäuser, sowie 4 Stadtvillen.


Ortsmitte Seeheim-Jugenheim_1 Ortsmitte Seeheim-Jugenheim_2 Ortsmitte Seeheim-Jugenheim_3